
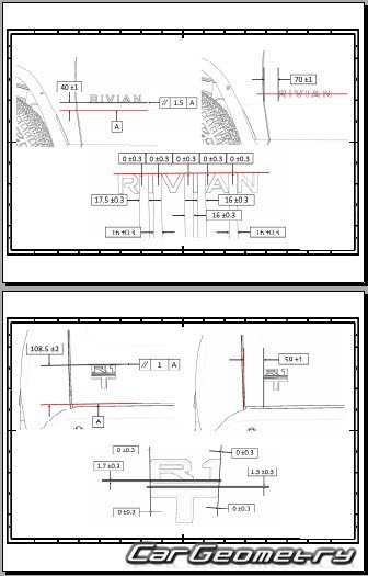
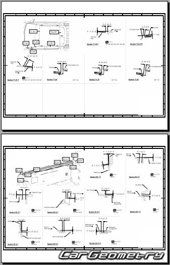
Кузовные размеры для восстановления геометрии кузова Rivian R1T 2022-2029. С помощью этих данных осуществляется проверка геометрии кузова пикап, с последующей рихтовкой поврежденных частей автомобилей Ривиан Р1Т.
Выборка из заводской документации и различных стендовых баз по Rivian R1T 2022-2029 Body dimensions, стендовые размеры кузова и контрольные точки геометрии Ривиан Р1Т.
Примеры данных из архива
Скачать контрольные размеры кузова
Rivian R1T Pickup 2022-2029 Body dimensions
Rivian R1T Pickup 2022-2029 Body dimensions











