
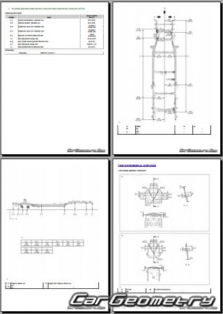
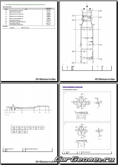
Кузовные размеры для восстановления геометрии кузова автомобилей Toyota Hilux (TGN121 TGN136 GUN126) 2020-2025. С помощью этих данных осуществляется проверка геометрии кузова, с последующей рихтовкой поврежденных частей автомобилей Тойота Хюликс восьмого поколения.
Информация по геометрическим размеры кузова Toyota Hilux, контрольным точкам, изображения сечений кузовных элементов, применяемым материалам, рекомендации по применимым типам, методам, материалам и местам сварки; места и материалы для нанесения шовных, звукоизолирующих, антикоррозионных мастик; места и направления резки кузовных элементов для последующей установки новых; типы материалов интерьера, обозначение и расшифровка.
Руководство по кузовному ремонту Toyota Hilux (TGN121 TGN136 GUN126) 2020-2025 Collision shop manual 289 страницы на английском языке. Данный сборник содержит огромное количество исключительно полезной и необходимой информации для занимающихся кузовным ремонтом самостоятельно и владельцев фирм по кузовному ремонту автомобилей Тойота Хайликс.
Примеры данных из архива
Скачать Заводское руководство по ремонту кузова и кузовные размеры
Toyota Hilux (TGN121 TGN136 GUN126) 2020-2025 Collision shop manual
Toyota Hilux (TGN121 TGN136 GUN126) 2020-2025 Collision shop manual





